データ更新日 随時更新中
物件登録件数 2,500件以上
現在の会員登録数 4,000件以上
売買物件検索
賃貸物件検索
その他の物件情報
売却依頼・査定・ご相談
入居者斡旋・査定・ご相談
コンテンツ
関連サイト

東商ハウス株式会社

大阪市・豊中市・吹田市・箕面市・川西市・池田市・宝塚市・阪神間等の不動産はお任せください!

営業エリア外でもエリア近辺なら一度ご相談下さい!

不動産の売買・賃貸、リフォームや賃貸管理についてのお問い合わせ、ご相談を随時受け付けております。お気軽にお問い合わせください!

 
貸店舗・貸事務所 物件詳細 事務所 大阪日栄ビルディング
※物件は現状優先とさせて頂きます ※ご契約前に各種条件などの最新の情報をご確認下さい
※携帯電話でもご覧いただけます(通信費等はお客様の負担となります。ご覧いただけない機種がございます)
携帯サイトで表示

物件タイプ 賃料 保証金 管理費等 坪単価 物件番号
事務所 83.54万円 1002.48万円 250,620円 1.00万円 5D2470009
◆敷引き:5年未満は20% 他スライド制 ◆1階テナントは文房具店 ◆ビジネスホテル、コンビニ近接 ◆時間貸会議室・貸倉庫あり
沿線名

バス/徒歩
大阪メトロ四つ橋線
肥後橋
- / 5
沿線名

バス/徒歩


- / -
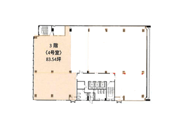
所在地 大阪市西区土佐堀1丁目
契約面積 276.16m2(83.54坪)
現況
築年月 昭和48年1月
構造 地上9階 地下1階
所在階 3階部分
用途地域
駐車場
接道状況
建物名 大阪日栄ビルディング


※画像の商用利用を禁止します
設備など
■外観写真・室内写真・その他の画像
※画像をクリックすると拡大表示します。

■この物件についてのお問い合わせ先 ご来店はお気軽に!

交通アクセス

各線 梅田駅下車 徒歩2分

所在地

〒530-0001
大阪府大阪市北区梅田1丁目3番1-100号 大阪駅前第一ビル1F

連絡先

TEL 06-6345-1110(代)
FAX 06-6345-0580(代)
E-Mail osaka@toshohouse.co.jp

定休日

土曜日・日曜日・祝日